375MOD
Programme
Logement collectif
Lieu
Berchem-Sainte-Agathe
Date
2021
Thématiques
Urbain, Rénovation, Marché public
Phase
En cours
Surfaces
18 000 m²
Equipe
Label, BESP, MK Engineering, Ann Voets
Client
Comensia
Budget
€ 37 200 000
La rénovation de la Cité Moderne
La Cité Moderne, conçue par Victor Bourgeois (et peut être Louis Van der Swaelmen?) au début des années 1920, fait l’objet d’une campagne de rénovation progressive, à l’initiative de la coopérative de locataires Comensia.
Ces dernières années, Karbon’ a eu l’opportunité d’intervenir sur deux typologies significatives de la Cité : celle des type C, les Bovenhuis (278BER) et celle de l’immeuble collectif type K place de l’Iniative et rue de la Gérance (331INI). Ces projets, menés par ajustements successifs, ont pris appui sur les recherches de l’architecte Iwan Strauven, consacrées à la production architecturale de Victor Bourgeois. Dans son ouvrage Modernity, tradition and neutrality il souligne le contraste structurant entre le vocabulaire résolument moderne de la Cité, exprimé notamment par l’articulation de volumétries cubiques et la mise en œuvre de techniques de construction innovantes – telles que le béton « Non Plus » – et des éléments plus traditionnels, que l’on reconnait entre autres à travers l’usage du crépi tyrolien, les planchers en bois ou encore les menuiseries à croisillons.
Ces constats ont permis d’affiner la connaissance des logiques constructives et formelles de cet ensemble classé et de proposer une stratégie cohérente à l’échelle de l’ensemble de la cité. Aujourd’hui, le projet de rénovation s’attèle donc aux 13 autres typologies de maison (173 logements) qui composent la cité. Menée en collaboration avec Label Architecture, Architecture Parallèle et Ann Voets, la rénovation adopte une approche attentive à l’existant, visant à préserver et restaurer méticuleusement les qualités singulières des bâtiments et des structures paysagères de la cité, tout en intégrant les transformations nécessaires pour que les logements répondent aux usages contemporains et aux exigences techniques et fonctionnelles actuelles.




Retrouver les qualités de la cité-jardin
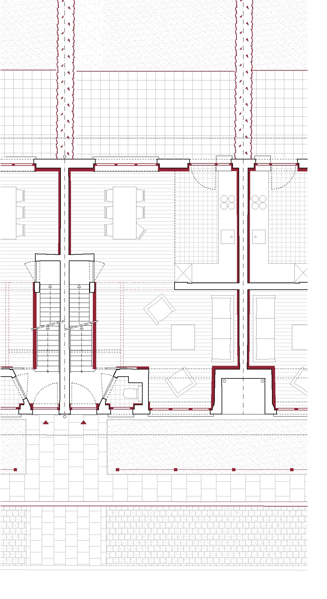
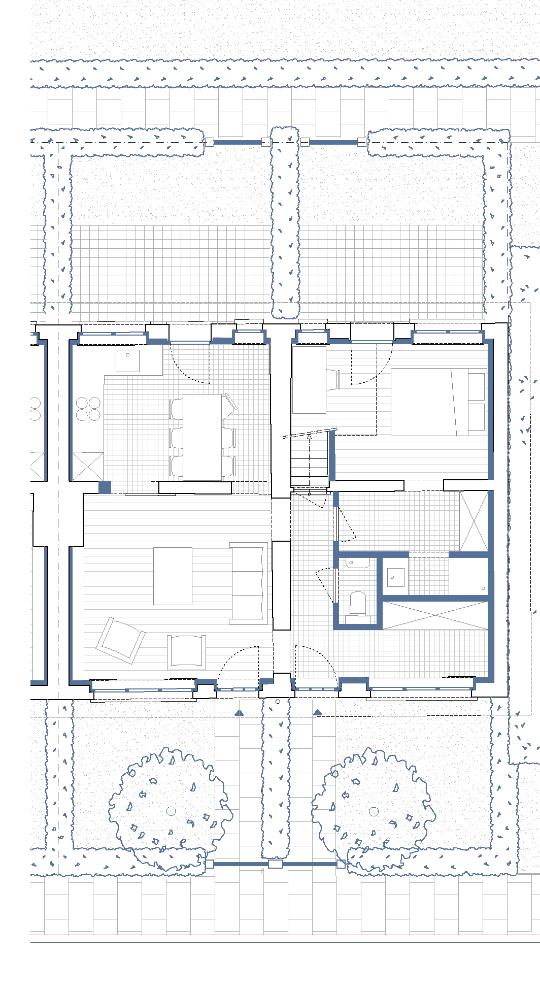
Au fil des décennies, l’asphaltage des rues, la fermeture des balcons et la dégradation progressive des bâtiments comme des abords ont ternis les qualités originelles de la Cité Moderne. La démarche engagée vise à réaffirmer la valeur de ce patrimoine reconnu internationalement, et à réinscrire la cité dans son identité première de cité-jardin. La réactivation du réseau de venelles et la mise en évidence des huit strates végétales qui structurent le site permettent d’en restituer la logique paysagère. Ces différentes plantations et leurs variations de rythme, hauteur et densité, permettent d’articuler jardins privés et espaces publics dans un système cohérent structurant les vues, les seuils et les circulations.
Habiter le patrimoine
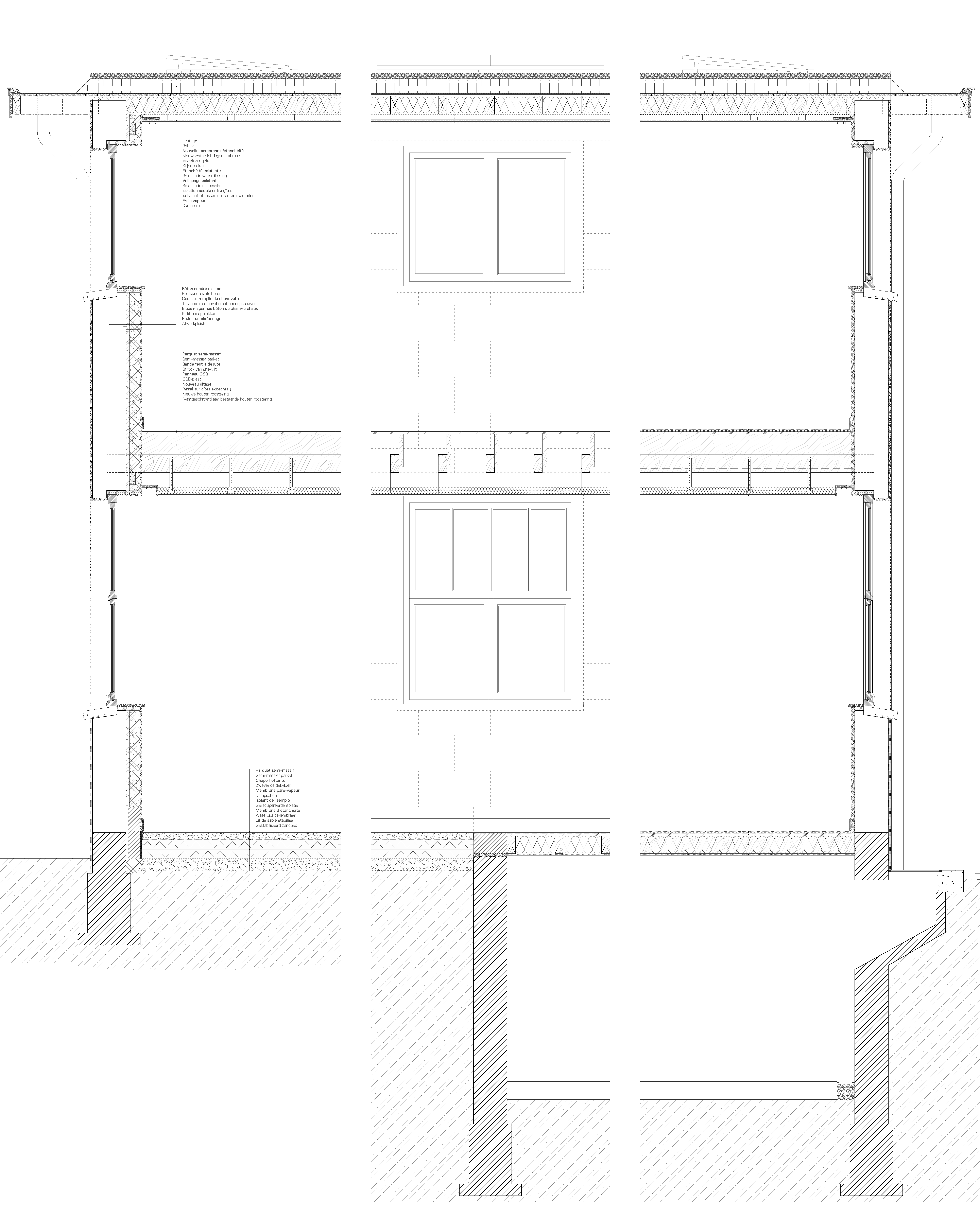
La rénovation d’un ensemble bâti de logements sociaux passe nécessairement par l’amélioration de l’isolation thermique de son enveloppe. Ici, le caractère patrimonial de la Cité Moderne impose naturellement le choix d’une l’isolation par l’intérieur qui permet de préserver l’aspect et les proportions originales de bâtiments et d’éviter la fragilité inhérente aux systèmes d’enduit sur isolant. Les façades extérieures sont ainsi soigneusement restaurées : la distinction entre crépis rugueux et soubassement en enduit lisse est redéfinie, les seuils des fenêtres en béton sont restitués, ceux des entrées en briques sur chant restaurés. Un travail de restauration des châssis dans leurs couleurs originales, révélées par des études stratigraphiques, restitue progressivement l’échelle chromatique - rouge, vert et bleu – essentielle au paysage urbain de la cité.
Si le projet s’attache à la restauration des caractéristiques patrimoniales de la cité, il pose également la question de l’intervention contemporaine et des nouvelles manières d’habiter. Les typologies sont ainsi adaptées, dans une logique de démolitions minimales et de préservation des structures existantes : ouverture des séjours pour obtenir des pièces traversantes, aménagement des combles en chambre ou en pièce supplémentaire, fusion de deux typologies pour créer des logements 4 et 5 chambres.


Des systèmes constructifs "compatibles"
Le parti de rénovation de la Cité Moderne repose sur une lecture attentive des bâtiments et sur des choix techniques alignés avec les logiques constructives de l’époque, afin d’assurer la robustesse et la pérennité des interventions. L’étude du béton caverneux dit « Non Plus » a mis en évidence ses propriétés légèrement isolantes et son comportement hydrique. Ses caractéristiques se combinent efficacement avec celles du béton de chanvre-chaux, lequel régule naturellement l’humidité sans altérer sa tenue mécanique et limite les risques de condensation au droit des nœuds constructifs. L’association conjointe de ces deux matériaux constitue un complexe mural massif et collaborant, renforçant à la fois l’inertie thermique de l’enveloppe et la stabilité du confort intérieur.



















